- 当前位置:首页>> 产品展示>> 全电动堆高车/装卸车
-
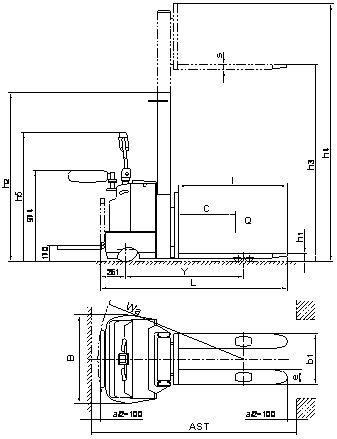
额定载重:1200 / 1500kg
货叉最高高度:1600-3300mm
货叉外宽:540mm
产品详细介绍:产品名称:单油缸全电动堆高车
电动行走、电动起升
electric-powered travel,elctric- powered lift
适用于仓库、货场中货架上托盘的存取和短距离移动
designed for stacking palettes on racks and transporting goods for short distance
进口电控及液压单元
imported electric control unit and hydraulic unit
结构坚固,稳定性好,操控安全轻便
reinforced chassis,high stability and good operating flexibilityt
低噪声、无污染、故障率低、易于维修
low noise,no polution,few operationg disorder and easy mantenance

固定式货叉

可调式货叉
产品参数:


其它车型:

- 热门产品more











