- 当前位置:首页>> 产品展示>> 全电动堆高车/装卸车
-
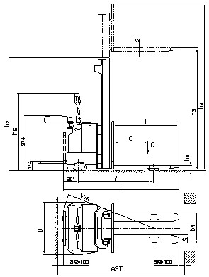
额定载重:1500 / 2000 kg
货叉最高高度:2443/4343mm
货叉外宽:560mm
产品详细介绍:产品名称:DCT-B系列双油缸全电动堆高车(宽视野)

带站板

不带站板
产品参数:


- 热门产品more

产品名称:DCT-B系列双油缸全电动堆高车(宽视野)
|
带站板 |
不带站板 |
产品参数:


主营全电动叉车,油桶倒料车,脚踏平台车,全电动堆高车,半电动堆高车,全电动搬运车,半电动搬运车,手动液压搬运车,叉车桶夹,电动堆高车维修.
版权所有:苏州市斯壮格机械科技有限公司 苏ICP备13056187号-1 技术支持:晨光科技 苏州网站建设
手机:18136069656、13814883332 传真:0512-66956272 公司地址:苏州市吴中区长江南路98号华夏五金机电城8栋822